3-D Laser Scanning, Point Cloud, 3-D Photography and Visual Tours for Commercial, Residential and Industrial Projects Nationwide.

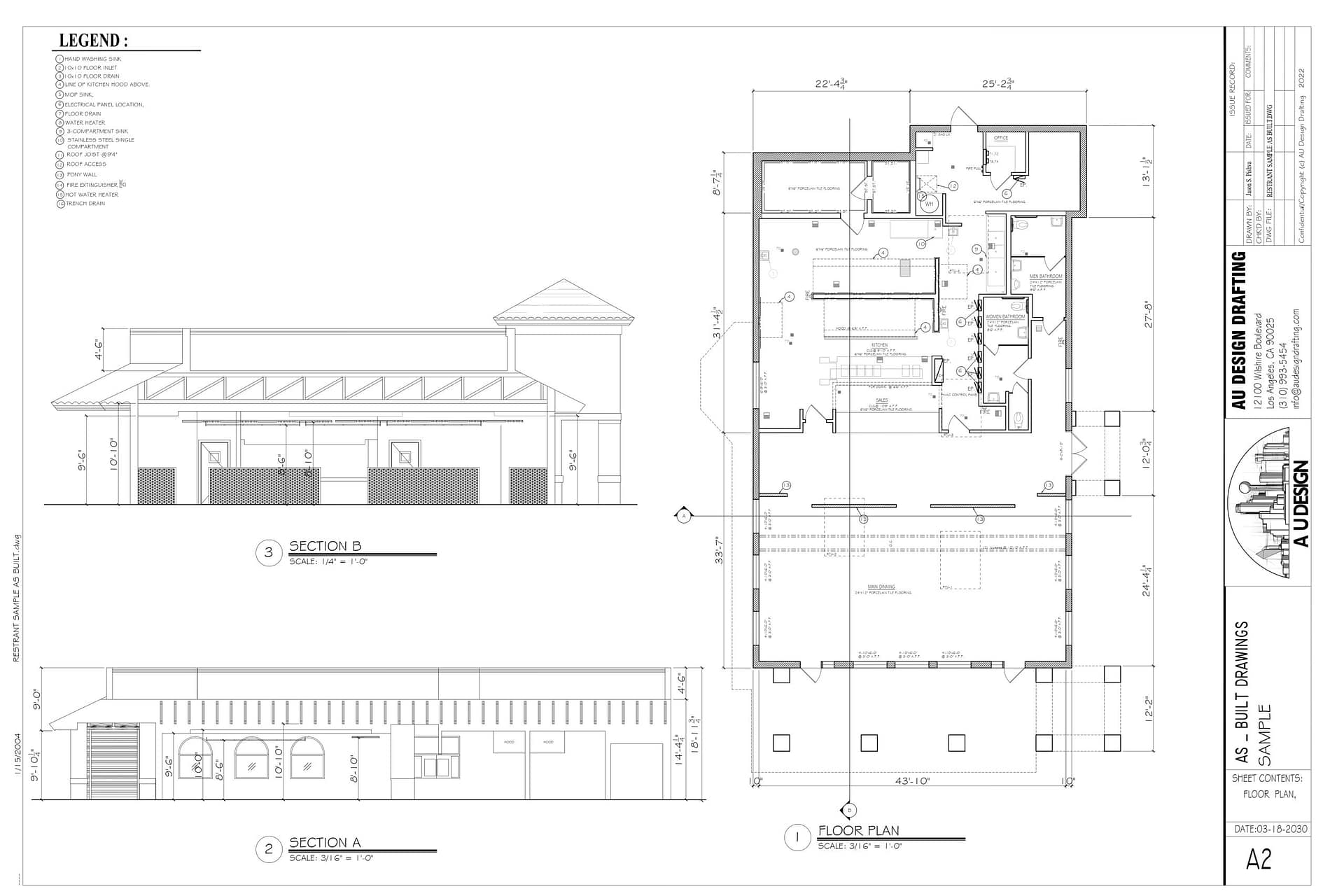
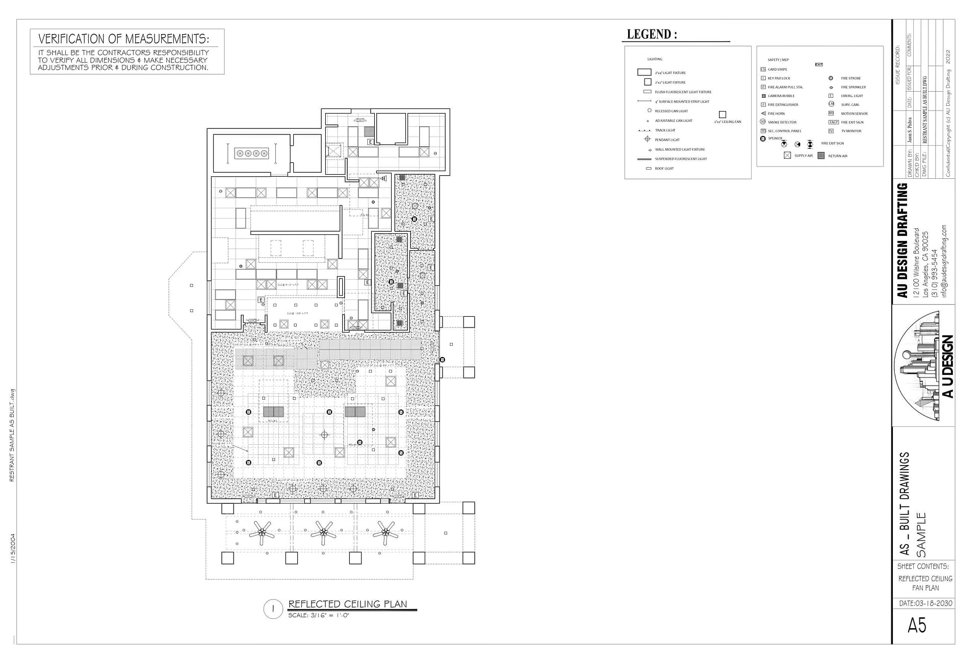
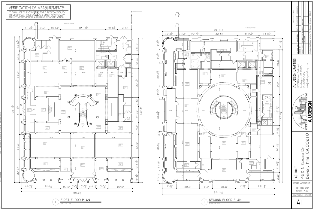
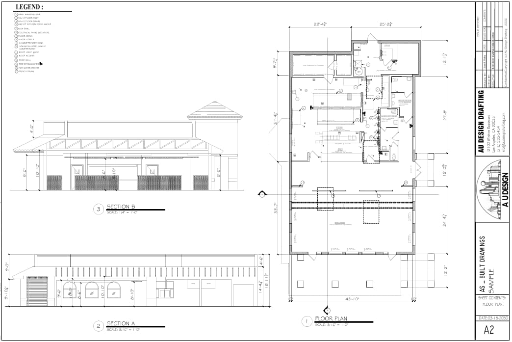
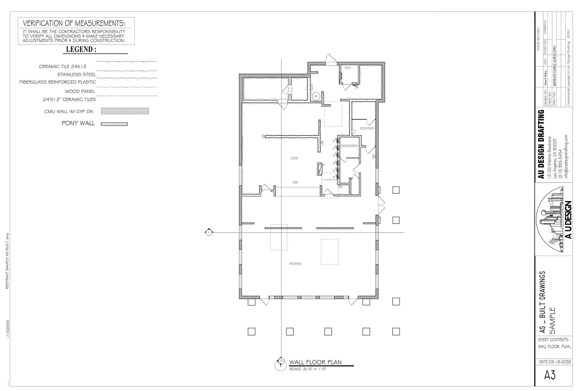
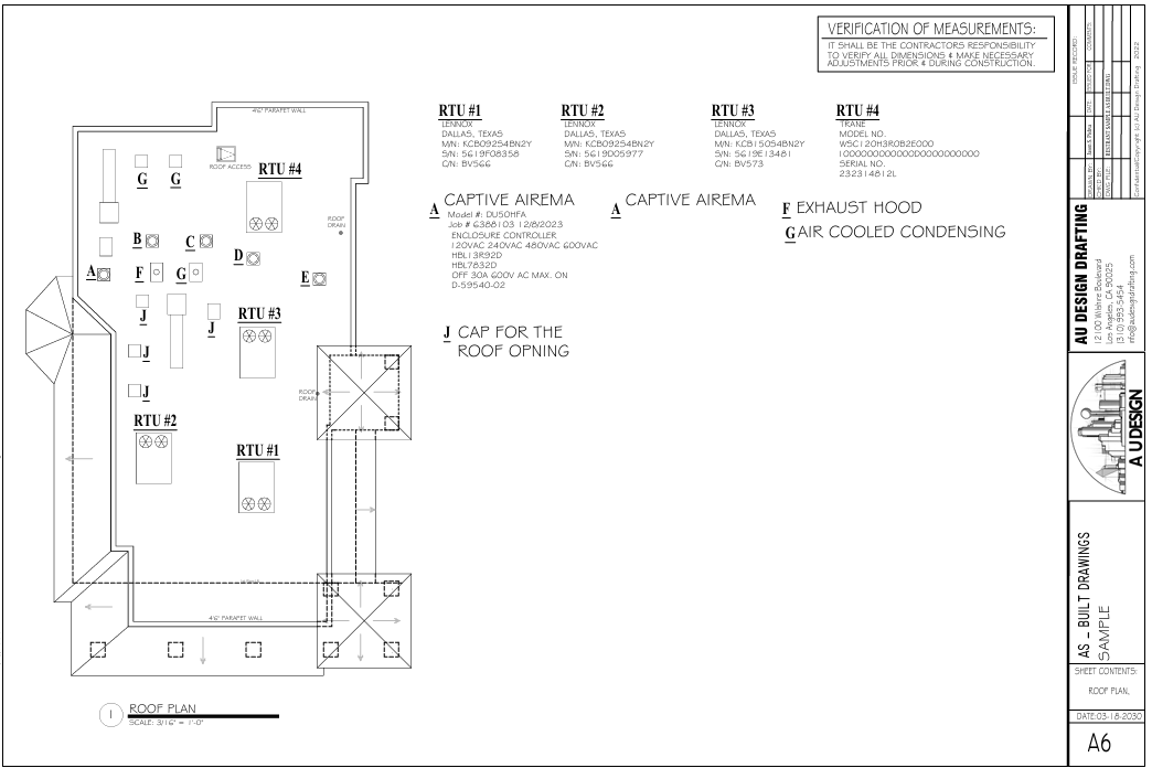
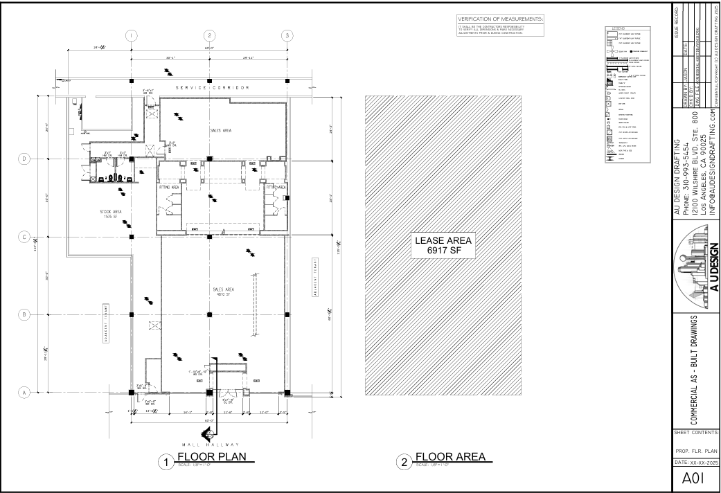
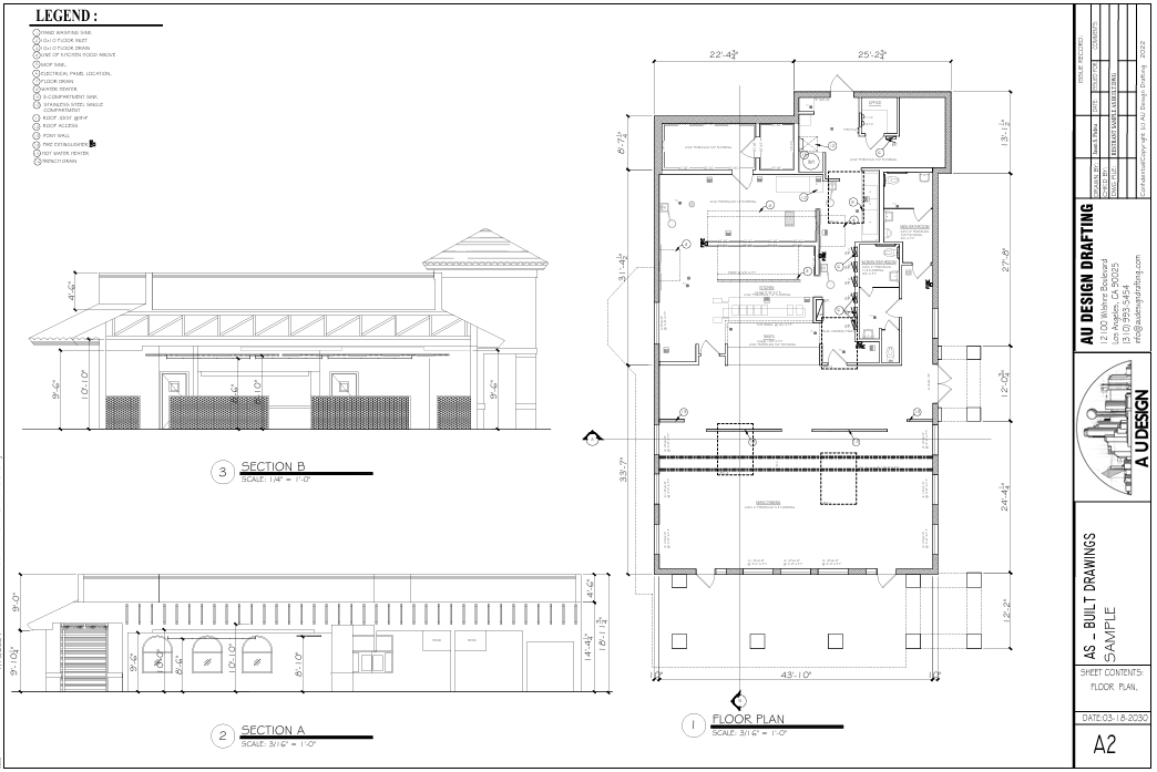
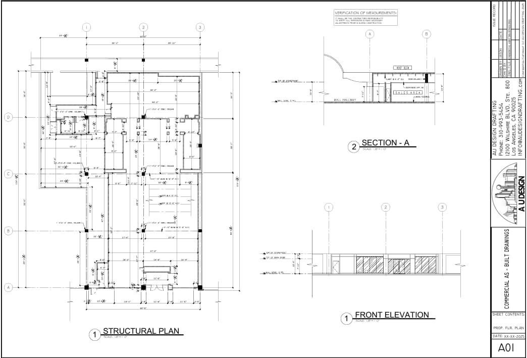
AU Design Drafting provides as-built services for commercial properties including hotels, retail spaces, restaurants, and office buildings. Our as-built drawings allow architects and engineers to plan with confidence that every wall, system, and layout is accurately captured. Our documentation meets city code requirements for renovations, tenant improvements, and facility upgrades.

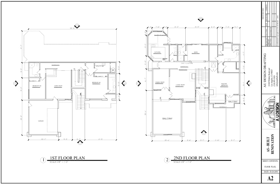
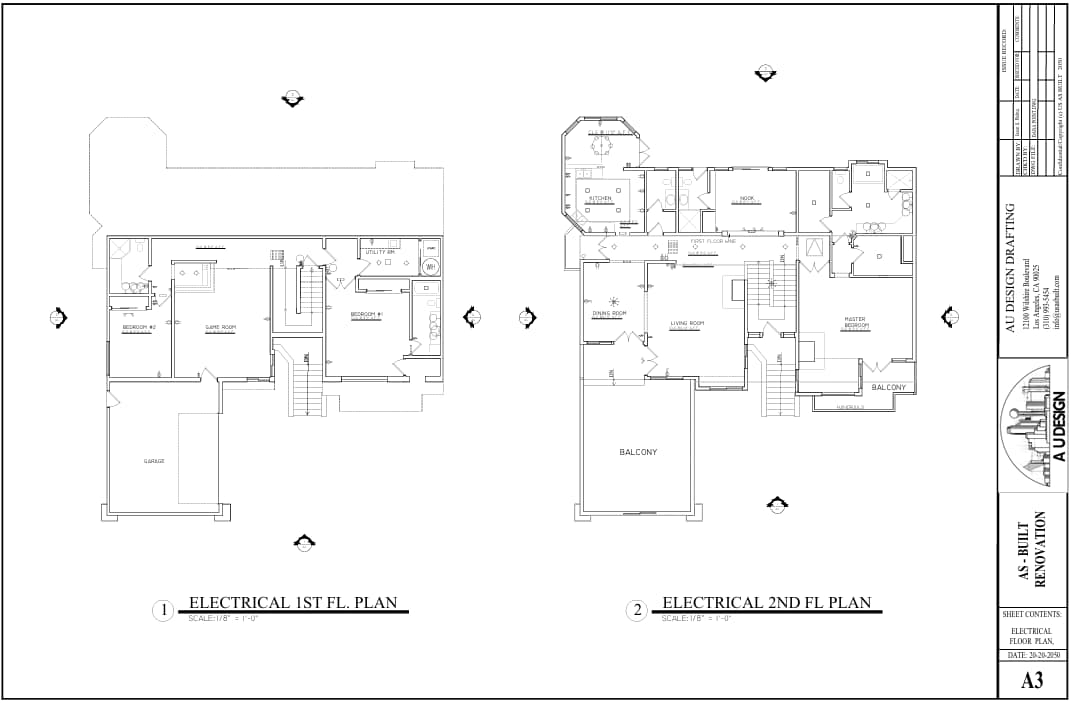
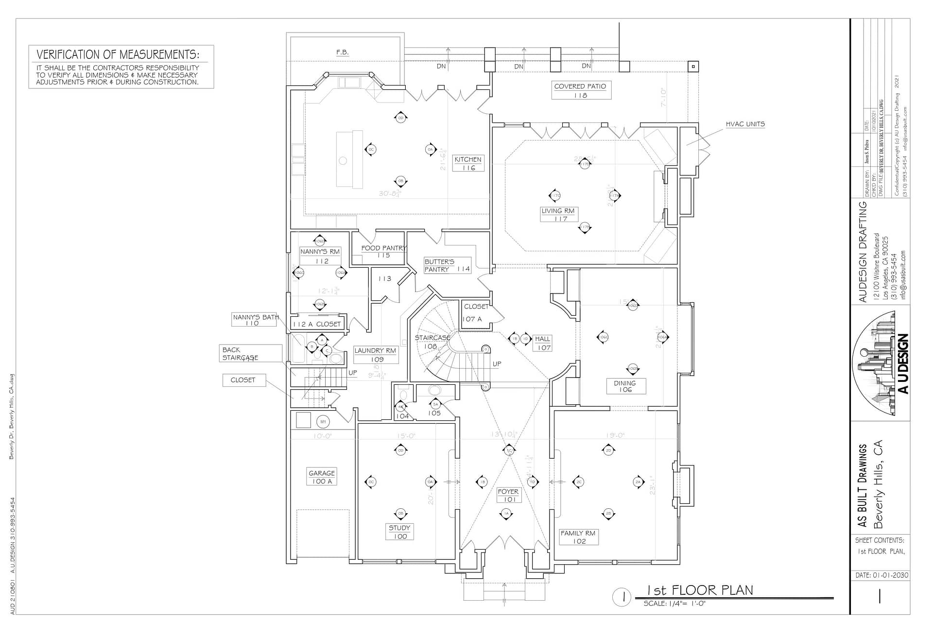
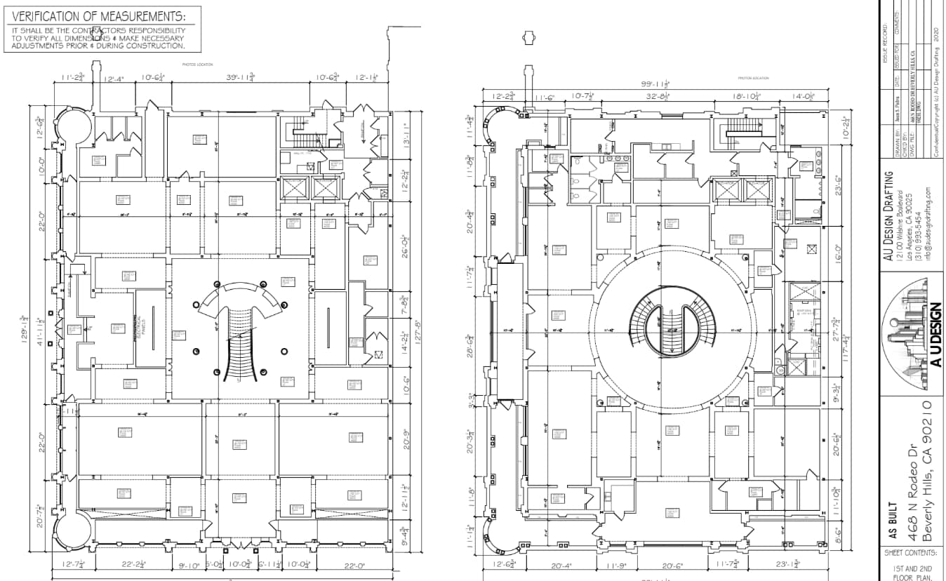
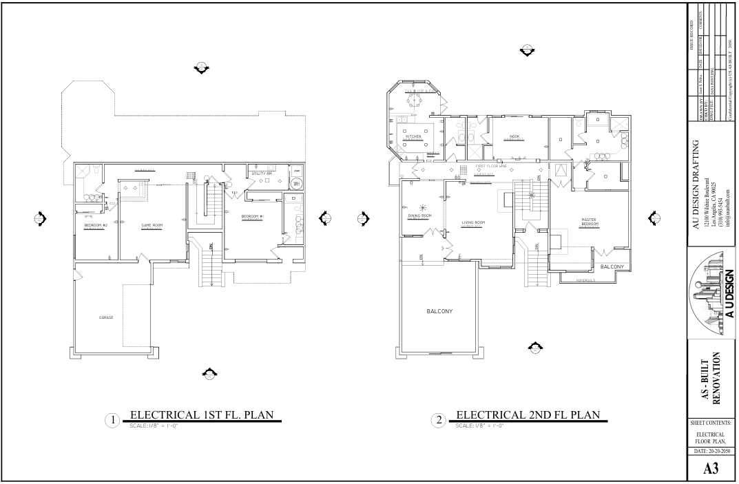
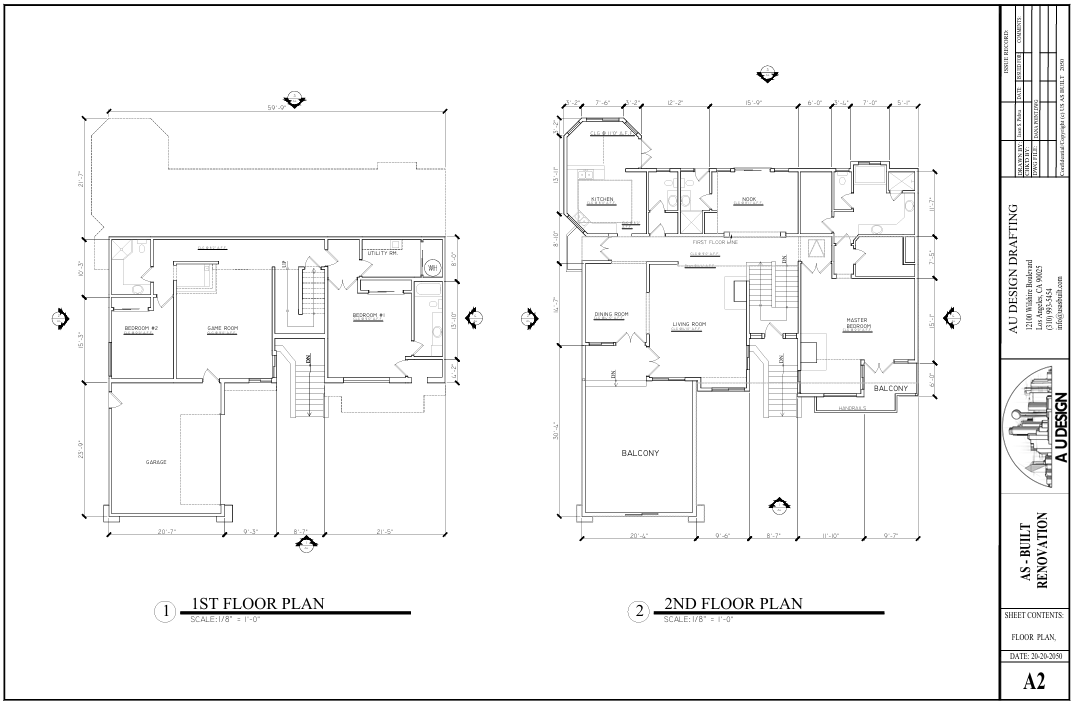
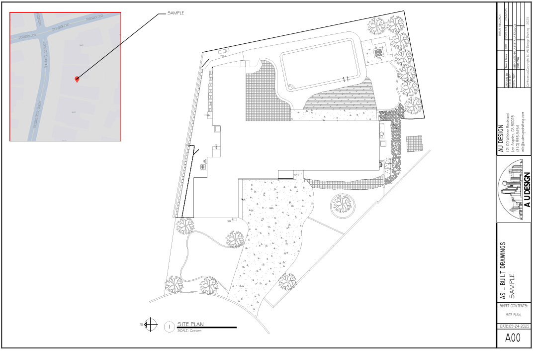
Accurate residential as-built drawings for homeowners, architects and contractors across Los Angeles and Southern California. Using advanced laser scanning, we deliver as-built plans, record drawings, and shop drawings that reflect true field measurements. Our as-built drawing services include floor plans, elevations, and design drawings to ensure fast permit approval and construction.

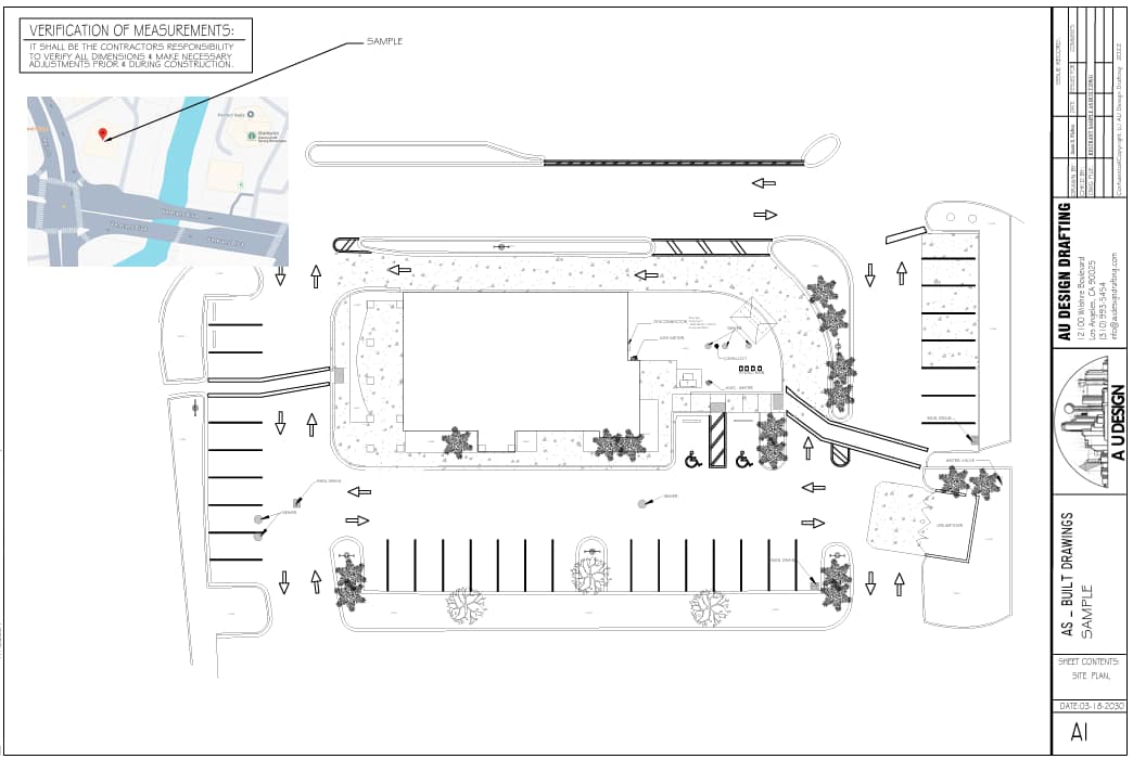
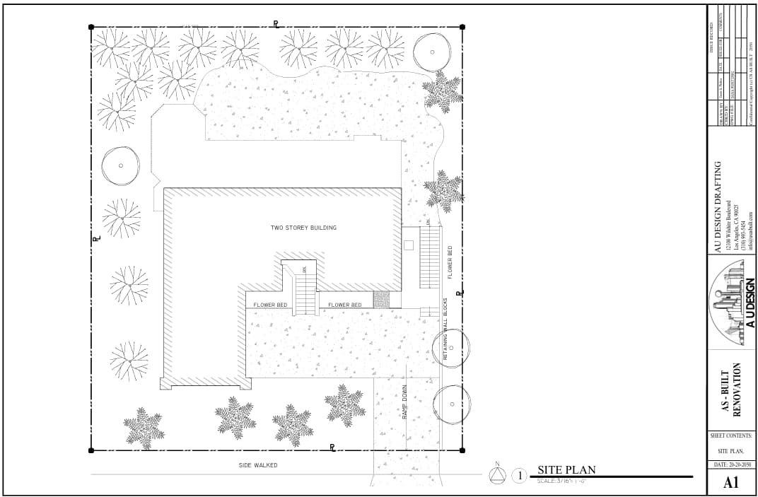
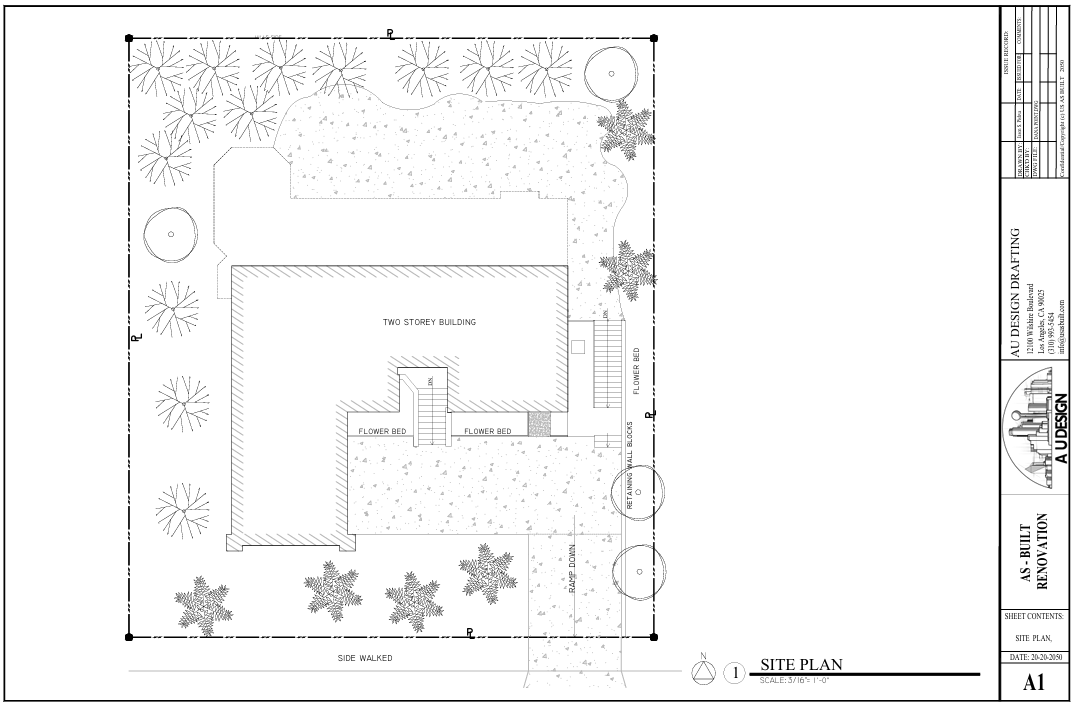
Our site plans provide detailed documentation of property boundaries, topography, utility locations, and existing structures. These as-built plans are essential for zoning reviews, permit applications, and construction planning. Whether you're developing a new structure or modifying an existing one, our as-built drawings ensure your site data is accurate and build-ready.

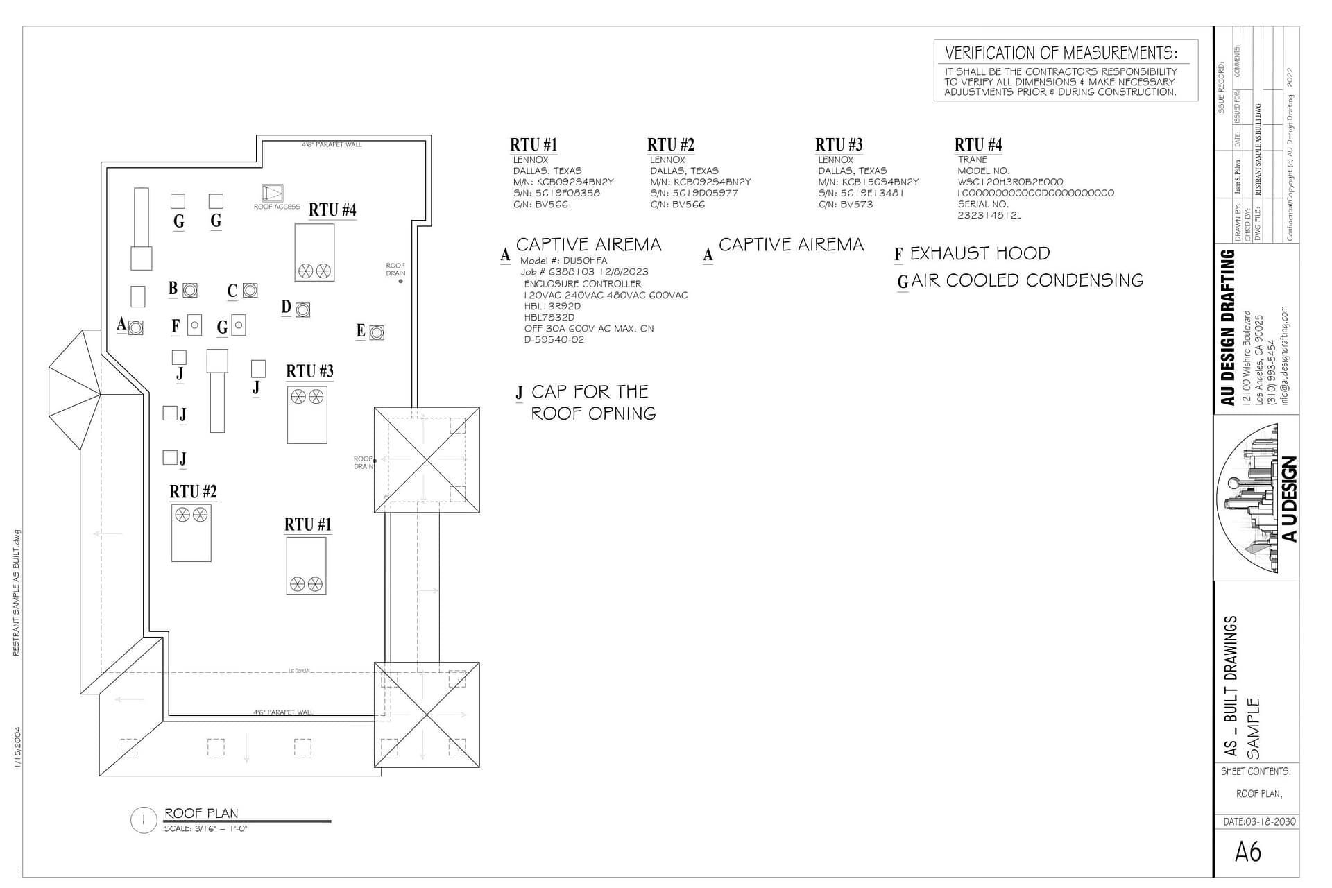
Our specialized as-built documentation for warehouses, distribution centers, and industrial facilities include floor plans, MEP layouts, and shop drawings for renovations, equipment installations, and compliance upgrades. Laser scanning produces as-built plans and record drawings that reflect verified building data, capturing every structural and mechanical detail.
When it comes to as-built documentation, accuracy is everything. In Southern California and Los Angeles, architects, engineers, interior designers, home owners and contractors rely on precise as builts, shop drawings, and record drawings to ensure projects meet design intent and comply with local building codes. Our professional scanning services transform physical as built plans, as built blueprints, and design drawings into high-resolution digital files, making them easy to store, share, and update.
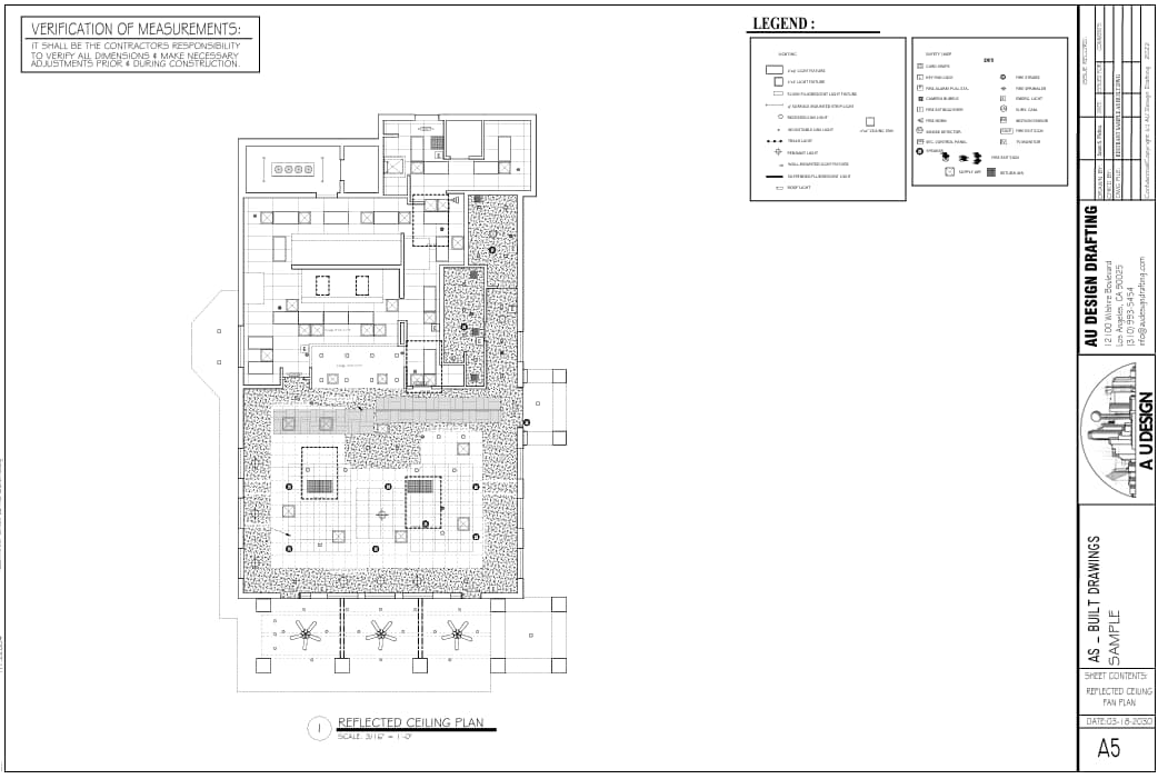
As-built drawings represent the actual conditions of a completed project, including any changes made during construction. As built documentation reflects the real-world installation of systems, walls, and structural elements. These record drawings are essential for renovations, additions, and future maintenance.
3D Scanning for shop drawings provides numerous benefits. Digital as builts improve collaboration between architects, contractors, and property owners. They eliminate the risk of losing paper building drawings and allow easy access from anywhere. Whether you need as built plans for a commercial building in Los Angeles or as built blueprints for a residential remodel in Orange County, our scanning service ensures your files are secure and organized.
We specialize in scanning as built drawing sets, shop drawings, and record drawings at high resolution. Each as-built file is indexed for quick retrieval, making it simple to locate specific as built plan details. Our team understands the importance of accuracy in as built documentation, so we use advanced technology to capture every line and note from your original design drawings.
Digitized as builts are critical for architects and engineers working on renovations or expansions. They provide a reliable reference for shop drawing updates and help clarify as built meaning for future projects. Whether you’re managing a large-scale development in Los Angeles or a custom home in Southern California, having digital as-built drawings ensures efficiency and compliance.
Our company serves all of Southern California, including Los Angeles, Orange County, Riverside, and San Diego. We deliver professional scanning for as built drawings, shop drawings, and record drawings with fast turnaround times. From as built blueprints to design drawings, we guarantee clarity and precision in every file.
When planning a home renovation, addition, or new construction, accurate documentation is essential. Our team specializes in as-built drawings and 3D scanning services for residential properties across Los Angeles and Southern California. Whether you need as builts, shop drawings, or laser scanning services, we provide precise measurements and detailed plans to ensure your project runs smoothly.
Many homeowners ask, “What are as-built drawings?” These are detailed record drawings that show the actual conditions of your home after construction or remodeling. Unlike design drawings, which represent the original plan, as-built documentation reflects every change made during the building process. From as built plans and as built blueprints to as built models, these documents are critical for future renovations and maintenance.
Our as built services help homeowners avoid costly mistakes. Accurate as builts ensure contractors and architects have the correct dimensions before starting any work. Whether you need as built drawings vs record drawings explained or want to know the as built meaning, we provide clarity and precision. We also offer as built drawings examples and guidance on as built drawings cost so you can plan your project effectively.
In addition to traditional as-builts, we offer advanced 3D scanning services using the latest LiDAR scanning technology. Our 3D laser scanning services capture every detail of your home in high resolution, creating accurate digital models for architects and designers. Searching for 3D scanning services or laser scanning company? We serve all of Southern California, including Los Angeles, Orange County, Riverside, and San Diego.
We specialize in delivering precise as-built interior plans, detailed elevations, and furniture layout drawings for interior designers and homeowners across Southern California, including Los Angeles, Orange County, San Diego, and surrounding areas. Our site-verified CAD drafting ensures your design documentation is accurate, professional, and ready for permits or remodeling.
Accurate floor plans for existing spaces.
Detailed wall elevations for design clarity.
Optimized layouts for furniture placement.
Perfect for renovations and expansions.
We provide a full range of CAD design and drafting services, including architectural, structural, mechanical, and electrical drawings. Whether you need 2D floor plans, 3D models, or as-built documentation, we’ve got you covered.
Yes, our team specializes in both 2D CAD drafting for detailed technical drawings and 3D CAD modelling for visual renderings and virtual prototypes.
We work with a variety of sectors, including architecture, construction, civil engineering, and interior design.
The cost of CAD drafting depends on factors such as drawing complexity, project scope, software used, and required detail level. We provide transparent, tailored quotes to suit your budget.