ADU Garage Conversion

Transform your garage into a stylish, functional ADU.

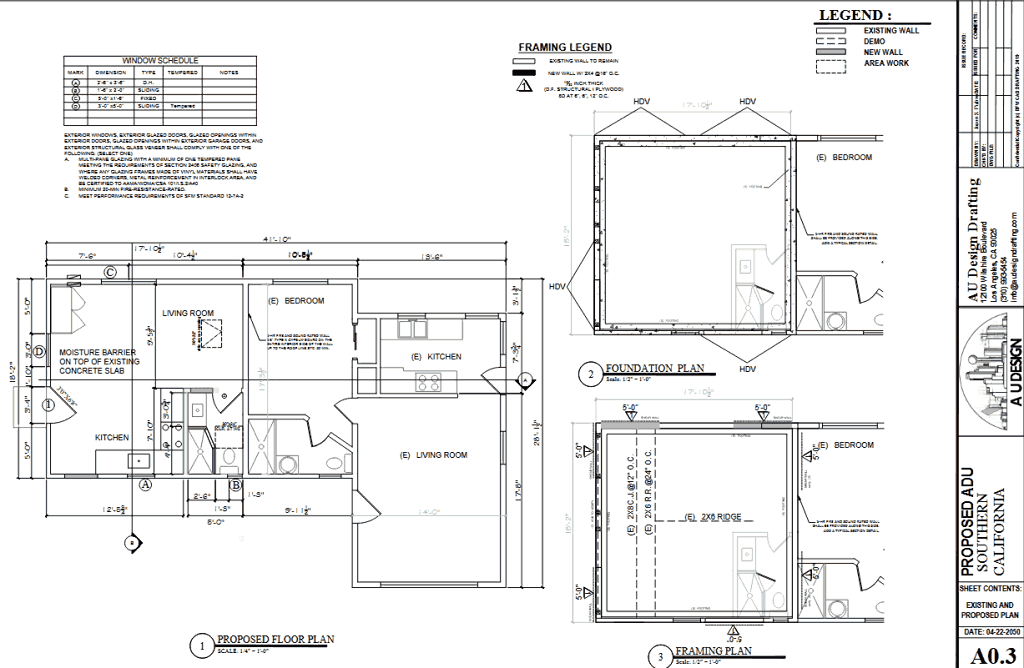
In Southern California, garage conversions into ADUs (Accessory Dwelling Units) are legal and increasingly popular, but they must comply with California state laws and local building codes. Key requirements include setbacks, fire safety, parking waivers, and permits.

Transform Your Garage into a Beautiful ADU

Looking to maximize your property’s value and create extra living space? Our expert team specializes in garage ADU conversions—turning underutilized garages into stylish, fully functional accessory dwelling units (ADUs). Whether you’re in Los Angeles, San Diego, or nearby, we offer tailored solutions for every type of garage.

Unlock Top-Tier ADU Design Today!

Garage to ADU Conversion

From concept to completion, we make your ADU vision a reality.

Free Consultation

This field is for validation purposes and should be left unchanged.
Name(Required)
Drop files here or
Accepted file types: jpg, gif, png, tiff, pdf, dwg, dxf, rvt, eps, doc, docx, xlsx, xls, Max. file size: 200 MB.

    ADU Garage Conversion Services

    Garage Conversion ADU

    Convert your existing garage into a modern ADU with full amenities.

    Garage ADU Conversion

    We handle everything from design to permits and construction.

    2-Car Garage ADU Conversion

    Double the space, double the potential—perfect for rental income or multigenerational living.

    Attached Garage ADU Conversion

    Seamlessly integrate your ADU with your home’s existing structure.

    Turn your garage into a valuable living space.

    We rely on the most advanced technology available to produce precise results.

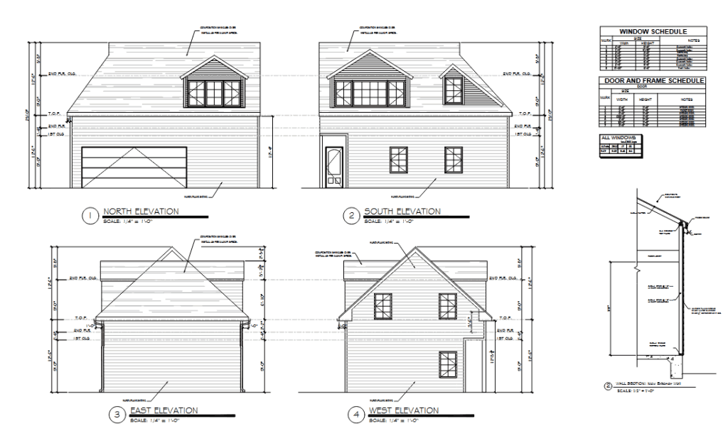
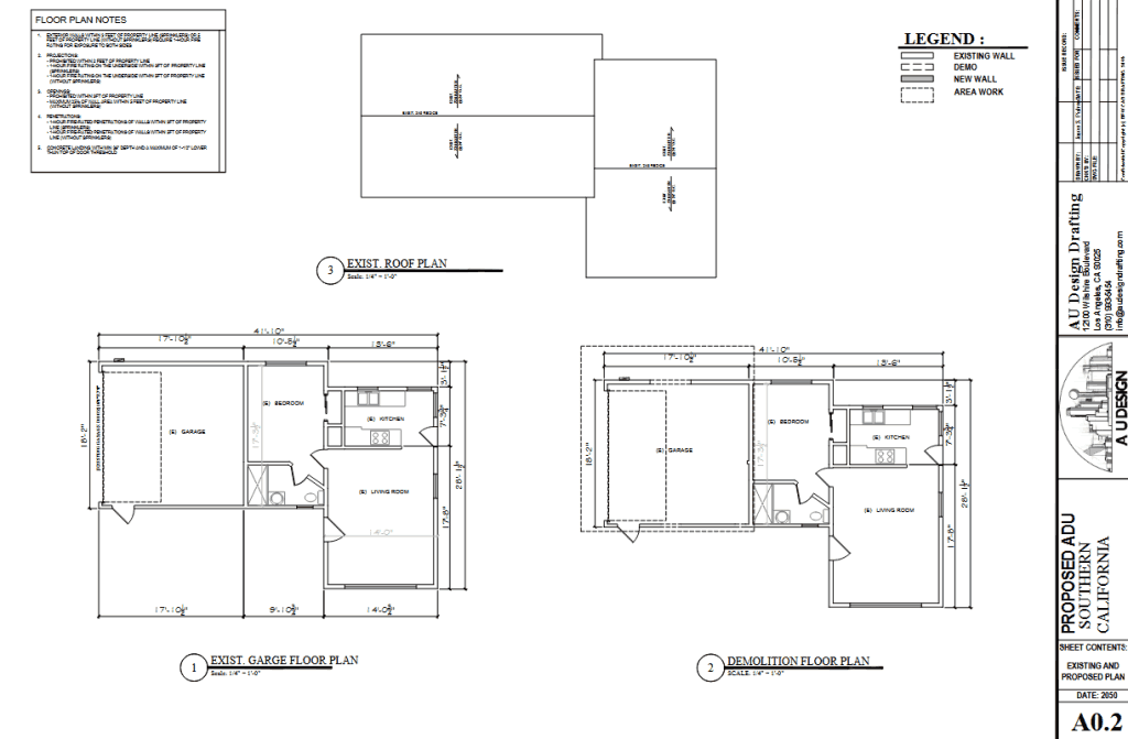
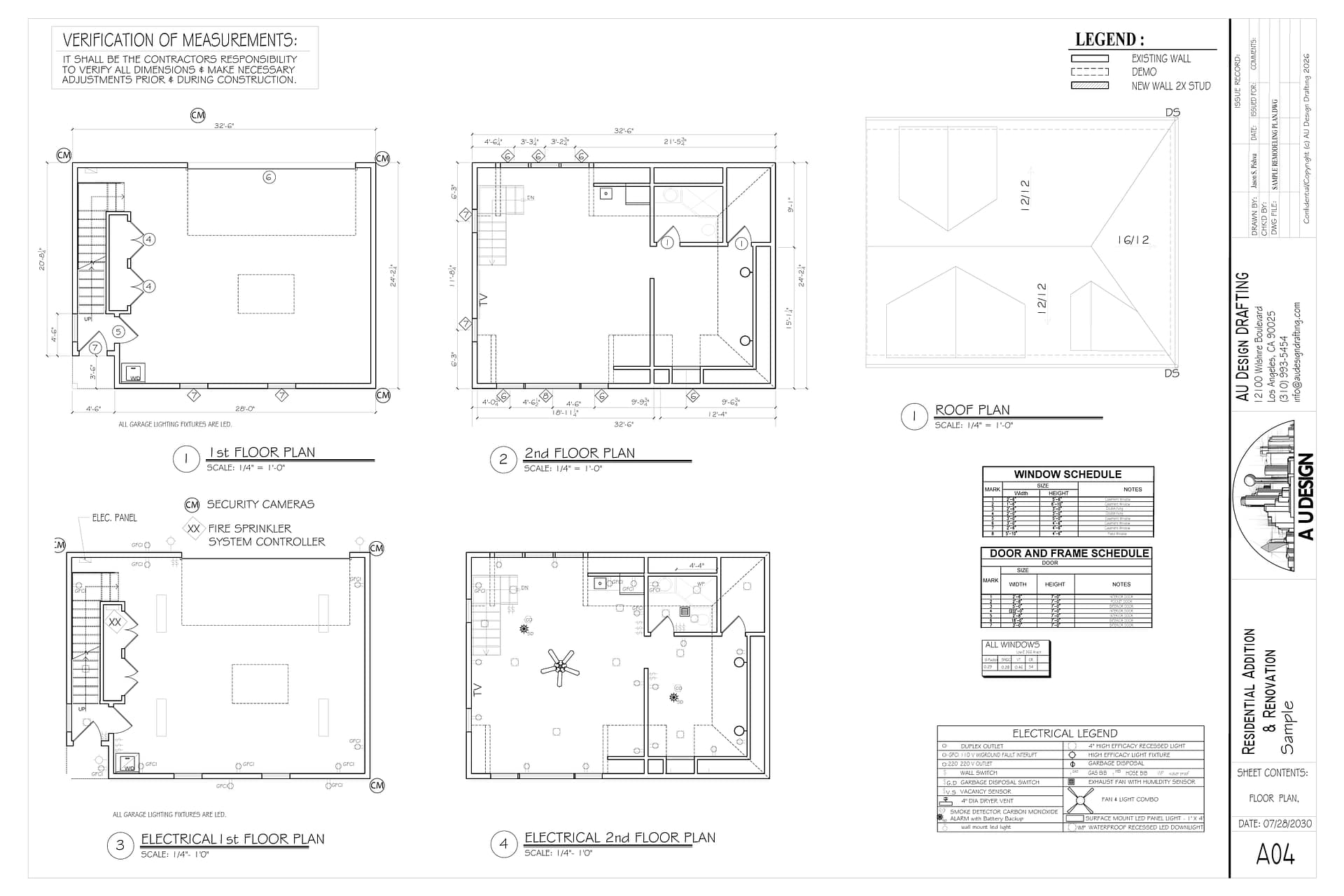
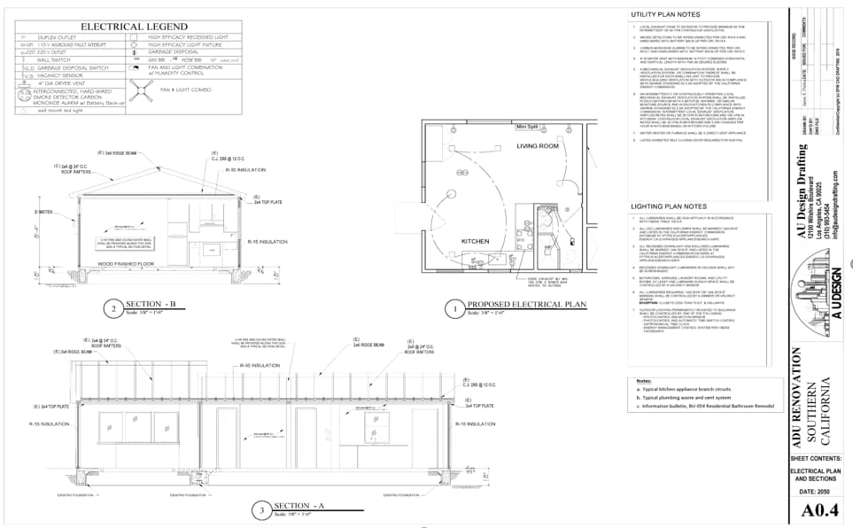
    ADU Garage Conversion Plans

    We offer comprehensive garage ADU conversion plans tailored to your property’s layout and local zoning regulations. Whether you need Los Angeles ADU garage conversion plans or San Diego-specific designs, our team ensures compliance and creativity.

    Key components of ADU garage conversion plans include:

    Transparent Pricing & Cost Estimates

    Transparent pricing for an ADU garage conversion varies significantly. Still, estimates are usually given per square foot in the U.S. Costs are broken down by basic, mid-level, and premium finishes, and can depend on:

    Cost Factors

    Scope of Work: Simple bedroom conversions cost less than adding a full bathroom, kitchen, or other complex features.

    Materials & Finishes: Costs vary greatly depending on the quality of materials, ranging from basic, affordable options to premium, custom finishes.

    Size: A bigger garage conversion will cost more than a smaller one.

    Labor: Hourly rates for skilled labor, like electricians, plumbers, and carpenters, will affect the total cost.

    Location: Costs vary depending on regional labor and material prices.

    Professional Fees: This includes fees for architects, designers, engineers, and other professional services.

    Accurate plans without delays or hidden costs

    Local Expertise in Southern California

    We specialize in ADU garage conversions in Los Angeles and San Diego, with deep knowledge of local building codes, permit processes, and neighborhood aesthetics.

    Garage Conversion ADU Orange County

    ADU Garage Conversion Los Angeles

    Los Angeles ADU Garage Conversion

    ADU Garage Conversion San Diego

    local experts in garage conversions

    Searching for an ADU garage conversion contractor? We’re your local experts in garage conversions ADU—ready to help you design, build, and enjoy your new space.

    • ADU Garage Conversion 
    • Garage ADU Conversions
    • ADU Garage Conversions

    ADU Legal Framework

    • California State Law allows homeowners to convert attached or detached garages into ADUs on single-family residential properties.
    • ADU Types: You can build a full ADU or a Junior ADU (JADU), depending on the size and configuration of the garage.
    • No setbacks required from side and rear property lines if the garage footprint remains unchanged.
    • If you expand the garage, setbacks must not exceed 4 feet from the rear and side property lines.
    • No replacement parking is required when converting a garage into an ADU.
    • This applies even if the garage previously served as the primary parking space.
    • Converted garages must meet fire safety codes, including proper insulation, smoke detectors, and fire-rated walls.
    • The space must be habitable, meaning it needs adequate lighting, ventilation, plumbing, and heating.
    • You must obtain building permits from your local city or count
    • Each municipality (e.g., Los Angeles, San Diego, Irvine) may have additional zoning rules, design standards, or inspection requirements.
    • Detached garages often require utility hookups for water, sewer, and electricity.
    • Existing garages may need foundation reinforcement, roof upgrades, or wall modifications to meet residential standards.
    • Submit plans for review
    • Address any code violations
    • Pass inspections to receive final approval
    What Our Customers Say
    Frequently Asked Questions
    What types of CAD drafting services do you offer?

    We provide a full range of CAD design and drafting services, including architectural, structural, mechanical, and electrical drawings. Whether you need 2D floor plans, 3D models, or as-built documentation, we’ve got you covered.

    Yes, our team specializes in both 2D CAD drafting for detailed technical drawings and 3D CAD modelling for visual renderings and virtual prototypes.

    We work with a variety of sectors, including architecture, construction, civil engineering, and interior design.

    The cost of CAD drafting depends on factors such as drawing complexity, project scope, software used, and required detail level. We provide transparent, tailored quotes to suit your budget.