3-D Laser Scanning, Point Cloud, 3-D Photography and Visual Tours for Commercial, Residential and Industrial Projects Nationwide.
AU Design Drafting provides high-precision as-built laser scanning services across Los Angeles and Southern California. We deliver accurate CAD drawings and field-verified documentation for residential, commercial, and industrial projects — fast, reliable, and reasonable price.

AU Design Drafting provides as-built services for commercial properties including hotels, retail spaces, restaurants, and office buildings. Our as-built drawings allow architects and engineers to plan with confidence that every wall, system, and layout is accurately captured. Our documentation meets city code requirements for renovations, tenant improvements, and facility upgrades.

Accurate residential as-built drawings for homeowners, architects and contractors across Los Angeles and Southern California. Using advanced laser scanning, we deliver as-built plans, record drawings, and shop drawings that reflect true field measurements. Our as-built drawing services include floor plans, elevations, and design drawings to ensure fast permit approval and construction.

Our site plans provide detailed documentation of property boundaries, topography, utility locations, and existing structures. These as-built plans are essential for zoning reviews, permit applications, and construction planning. Whether you're developing a new structure or modifying an existing one, our as-built drawings ensure your site data is accurate and build-ready.

Our specialized as-built documentation for warehouses, distribution centers, and industrial facilities include floor plans, MEP layouts, and shop drawings for renovations, equipment installations, and compliance upgrades. Laser scanning produces as-built plans and record drawings that reflect verified building data, capturing every structural and mechanical detail.
When it comes to as built drawings and as-built documentation, accuracy is everything. In Southern California and Los Angeles, architects, engineers, interior designers, home owners and contractors rely on precise as builts, shop drawings, and record drawings to ensure projects meet design intent and comply with local building codes. Our professional scanning services transform physical as built plans, as built blueprints, and design drawings into high-resolution digital files, making them easy to store, share, and update.
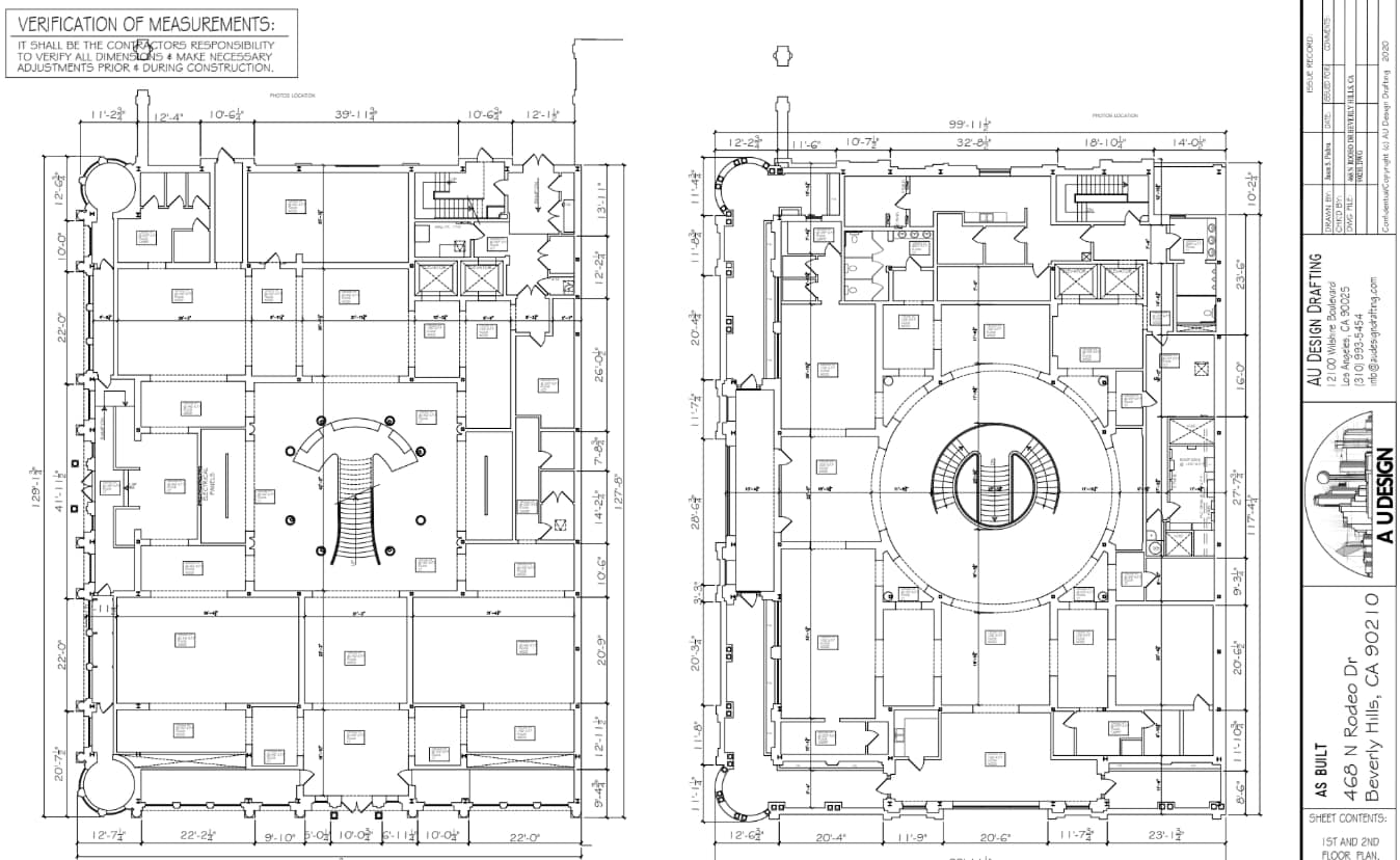
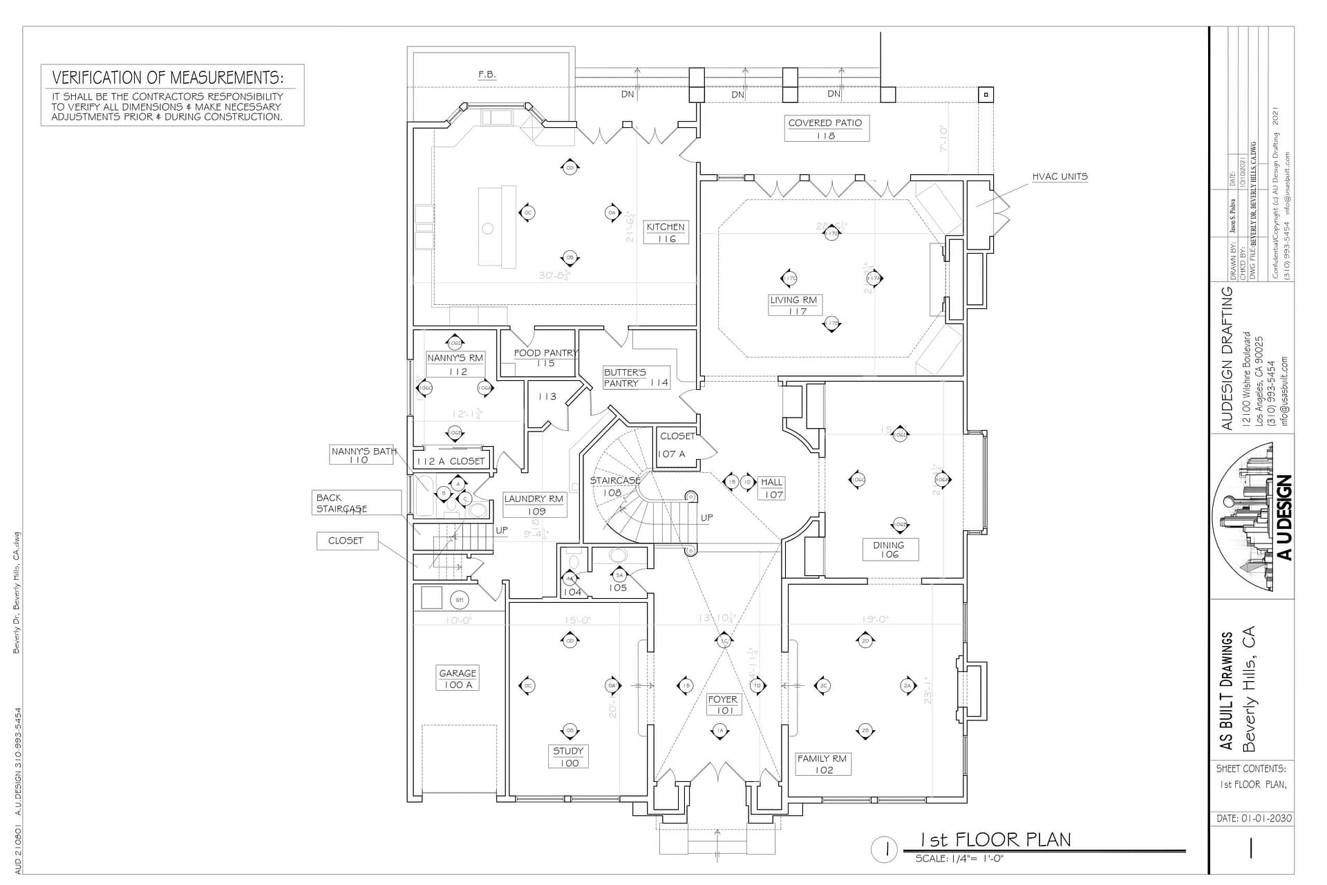
As-built drawings represent the actual conditions of a completed project, including any changes made during construction. As built documentation reflects the real-world installation of systems, walls, and structural elements. These record drawings are essential for renovations, additions, and future maintenance.
Scanning as built drawings and shop drawings provides numerous benefits. Digital as builts improve collaboration between architects, contractors, and property owners. They eliminate the risk of losing paper building drawings and allow easy access from anywhere. Whether you need as built plans for a commercial building in Los Angeles or as built blueprints for a residential remodel in Orange County, our scanning service ensures your files are secure and organized.
We specialize in scanning as built drawing sets, shop drawings, and record drawings at high resolution. Each as-built file is indexed for quick retrieval, making it simple to locate specific as built plan details. Our team understands the importance of accuracy in as built documentation, so we use advanced technology to capture every line and note from your original design drawings.
Digitized as builts are critical for architects and engineers working on renovations or expansions. They provide a reliable reference for shop drawing updates and help clarify as built meaning for future projects. Whether you’re managing a large-scale development in Los Angeles or a custom home in Southern California, having digital as-built drawings ensures efficiency and compliance.
Our company serves all of Southern California, including Los Angeles, Orange County, Riverside, and San Diego. We deliver professional scanning for as built drawings, shop drawings, and record drawings with fast turnaround times. From as built blueprints to design drawings, we guarantee clarity and precision in every file.
When planning a home renovation, addition, or new construction, accurate documentation is essential. Our team specializes in as-built drawings and 3D scanning services for residential properties across Los Angeles and Southern California. Whether you need as builts, shop drawings, or laser scanning services, we provide precise measurements and detailed plans to ensure your project runs smoothly.
Many homeowners ask, “What are as-built drawings?” These are detailed record drawings that show the actual conditions of your home after construction or remodeling. Unlike design drawings, which represent the original plan, as-built documentation reflects every change made during the building process. From as built plans and as built blueprints to as built models, these documents are critical for future renovations and maintenance.
Our as built drawing services help homeowners avoid costly mistakes. Accurate as builts ensure contractors and architects have the correct dimensions before starting any work. Whether you need as built drawings vs record drawings explained or want to know the as built meaning, we provide clarity and precision. We also offer as built drawings examples and guidance on as built drawings cost so you can plan your project effectively.
In addition to traditional as-built drawings, we offer advanced 3D scanning services using the latest LiDAR scanning technology. Our 3D laser scanning services capture every detail of your home in high resolution, creating accurate digital models for architects and designers. Searching for 3D scanning services or laser scanning company? We serve all of Southern California, including Los Angeles, Orange County, Riverside, and San Diego.
Whether you need 3D scanner professional expertise or laser scanning service for your residential property, we deliver accurate results every time.
We combine years of experience in as-built documentation with cutting-edge 3D scanning technology. From as builts in construction to as built plans for remodels, we ensure your home project starts with the right information. Our services are ideal for architects, contractors, and homeowners who demand accuracy and efficiency.
AU Design Drafting provides precise residential as-built drawings for homeowners, architects, and contractors across Los Angeles and SoCal. Whether you’re planning a remodel, addition, or ADU, we deliver as-built plans, record drawings, and shop drawings that reflect true field conditions. Our laser scanning technology ensures accurate as-built documentation for floor plans, elevations, and sections — all tailored for permit approval and construction. Keywords included: as-built, as built drawings, as built plans, record drawings, shop drawings, as built documentation, what are as built drawings, as built drawing services
We specialize in commercial as-built drawings for hotels, retail spaces, restaurants, and office buildings. Our team delivers as-built documentation, shop drawings, and record drawings that support renovations, tenant improvements, and facility upgrades. Using laser scanning, we produce as-built plans and building drawings that meet city code requirements and help design professionals plan with confidence. Keywords included: commercial as-built, as-built drawings, shop drawing, building drawings, record drawings, as built documentation, what is an as built, as built drawing services
Our site plan as-built services provide detailed documentation of property boundaries, topography, utilities, and existing structures. These as-built plans and record drawings are essential for zoning reviews, permit applications, and construction planning. We deliver as-built models, design drawings, and as-built documentation that reflect real-world conditions with precision and clarity. Keywords included: site plan as-built, as-built models, as built plan, record drawings, design drawings, as built documentation, what are as builts drawings
AU Design Drafting offers specialized as-built drawing services for warehouses, distribution centers, and industrial facilities. Our laser scanning captures every structural and mechanical detail, producing as-built plans, shop drawings, and record drawings for renovations, equipment installations, and compliance upgrades. We help engineers, property owners, and contractors make informed decisions based on verified building data. Keywords included: warehouse as-built, as-built drawings, shop drawings, as built documentation, record drawings vs as builts, what is an as-built, as built drawing services
AU Design Drafting provides industry-standard As-Built drawings that accurately reflect the completed structure, ensuring every dimension, change, and system layout is captured with precision. Whether for residential or commercial projects, our team creates highly detailed, compliant records that simplify maintenance and renovation. Let our experts combine drafting expertise with the latest technology to produce perfect plans.
Contact us today for expert as-built drawings and 3D scanning services in Los Angeles and Southern California. Let us help you turn your vision into reality with precision and confidence.
AU Design Drafting’s As-Built drawing services encompass everything required to document and verify completed works accurately:
01
Accurate floor plans and elevations reflecting all field variations.
02
Verified layouts showcasing actual beam placements, foundations, and framing details
03
Clear schematics of system routes and installed components for operational reliability.
04
Transforming contractor redlines into final professional CAD files ready for submission.
05
Our team offers comprehensive support for all building projects, including new builds, remodelling, and renovations. We prepare each application to meet local requirements, speeding up approval.
We rely on the most advanced technology available to produce precise results.
An accurate As-Built drawing isn’t just paperwork — it’s the foundation for transparency, safety, and future planning. At AU Design Drafting, we take pride in creating drawings that clearly depict every real-world change made during construction.
Our qualified drafters use laser measurement tools, field verification, and CAD precision to ensure every drawing meets municipal standards and your project’s documentation needs.
Whether you’re handing over a completed build, applying for permits, or planning a future extension, our As-Built drawings ensure clarity and accountability at every step.
Ensure your project’s final documentation meets all professional and regulatory requirements.
Contact AU Design Drafting today to schedule your As-Built survey and let our experts deliver drawings that stand up to inspection and time.
Accurate commercial built site plans and surveys are essential for shopping centers—whether you’re planning tenant improvements, re-striping, new signage, or fire lane adjustments. We deliver permit-ready site plan drawing, architectural site plan, and as-built documentation based on verified existing conditions. From Multi Family Home–adjacent retail, Apartment complex mixed-use, Hotels, Schools, Industrial/Warehouse, Office/Retail, Hospital/Medical Facilities, Military and Government Facilities, to Historical Buildings/Homes, our team produces clear, code-aware plans that help projects pass review the first time.
As-Built Site Plan: Current layout of buildings, suites, entries, drive aisles, fire lanes, loading zones, curbs, ramps, crosswalks, and accessible routes.
Parking & Striping Plan: Stall counts, dimensions, ADA/accessible spaces, signage, and path-of-travel.
Circulation & Safety: Fire Evacuation Plan as built drawings, hydrant locations, FDCs, Knox boxes, and emergency access clearances.
Utility & Lighting: Visible utility points, meter rooms, site lighting poles and photometric placeholders (as needed).
Landscape & Hardscape: Planters, trees, paving types, ramps, stairs, and site furnishings.
Data for Permits: Lot area, building coverage, setbacks, site plan for permit notes, zoning summary, and sheet index.
Record Drawings & As-Builts: Final record drawings and as built drawings reflecting field changes; comparisons for as built drawings vs record drawings and as builts vs record drawings.
Get a quote for as built drawing services, site plan for permit, or 3D laser scanning services in Los Angeles & Southern California. We’ll deliver clean, permit-ready plans and accurate as-built documentation—on deadline.
We combine traditional surveying with advanced 3D scanning services:
Our architecture site plan sets include site planning narratives, site plan examples, and clear site drawings for site plan that coordinate with civil, fire, and planning reviewers. We answer what is a site plan, provide home site plan equivalents for outparcel improvements, and deliver built as site plans aligned with field reality—reducing RFI and rework.
We’re not just drafters — we’re documentation specialists. At AU Design Drafting, we combine advanced surveying technology, industry knowledge, and meticulous attention to detail to ensure your As-Built drawings are precise, compliant, and ready for any future requirement.
Experienced in architectural and engineering documentation.
Verified on-site measurements using advanced scanning tools.
All drawings are formatted per city and industry standards.
Reliable turnaround that keeps your project moving.
We specialize in delivering precise as-built interior plans, detailed elevations, and furniture layout drawings for interior designers and homeowners across Southern California, including Los Angeles, Orange County, San Diego, and surrounding areas. Our site-verified CAD drafting ensures your design documentation is accurate, professional, and ready for permits or remodeling.
Accurate floor plans for existing spaces.
Detailed wall elevations for design clarity.
Optimized layouts for furniture placement.
Perfect for renovations and expansions.
Serving Southern California’s design community
Site-verified measurements and fast turnaround
Tailored documentation for interior design projects.
We provide a full range of CAD design and drafting services, including architectural, structural, mechanical, and electrical drawings. Whether you need 2D floor plans, 3D models, or as-built documentation, we’ve got you covered.
Yes, our team specializes in both 2D CAD drafting for detailed technical drawings and 3D CAD modelling for visual renderings and virtual prototypes.
We work with a variety of sectors, including architecture, construction, civil engineering, and interior design.
The cost of CAD drafting depends on factors such as drawing complexity, project scope, software used, and required detail level. We provide transparent, tailored quotes to suit your budget.